干蒸汽加湿器JSQ系列
![]()
公司名称: 苏普思科技 Sorpist Technologies (Wuxi) Limited 产品型号: 干蒸汽加湿器JSQ系列 产品简介: 干蒸汽加湿器是对空气进行加湿的理想装置,具有环境卫生、结构简单、加湿效率高、控制方便、调节精度等优点。当空气在一定情况下,加入蒸汽量不会合室温升高,且蒸汽不带水滴,广泛应用于医药、电子机械、仪表、宾馆、卷烟等各行业。
详细信息
干蒸汽加湿器是对空气进行加湿的理想装置,具有环境卫生、结构简单、加湿效率高、控制方便、调节精度等优点。当空气在一定情况下,加入蒸汽量不会合室温升高,且蒸汽不带水滴,广泛应用于医药、电子机械、仪表、宾馆、卷烟等各行业。
我公司生产的JSQ-S(手动)、JSQ-Q(汽动)、JSQ-D(电动)三种控制方式,15、20、50三种蒸汽喷管型号干蒸汽加湿器,配有7种孔径(2、4、6、8、10、12、14)喷管长度的弹性,可组成各种规格,最大加湿量为720Kg/h,基本可满足不同尺寸空调器,特殊规格可定制。
该加湿器的所有另件包括蒸发管、筒体、喷汽管、均采用不锈钢,使喷出的干蒸汽干净,具有体积小、重量轻、安装方便的特点。
型号说明:JSQ-15-2-500S
JSQ-干蒸汽加湿器(JS-加湿器代号,Q-干蒸汽型)
15-蒸汽喷管代号
2-蒸汽喷气孔直径2mm
500-排气管长度为500mm
S-手动型(Q-气动型,D-电动型)
规格型号:
加湿器孔径型号
15型
20 型
25型
蒸汽压力kg/cm2
φ2
φ4
φ6
φ8
φ10
φ12
φ14
0.2
1.3
4
7
11
17
118
182
0.4
1.5
5
10
17
25
140
218
0.6
2.0
7
16
26
35
164
250
0.8
2.3
8
17
28
43
180
280
1.0
2.8
9
19
32
52
201
318
1.2
3.0
10
21
35
56
220
343
1.4
3.5
11
23
38
60
236
369
1.6
3.8
12
25
42
66
256
398
1.8
4.0
13
27
45
71
274
422
2.0
4.2
14
28
49
76
292
450
2.5
4.5
15
31
52
82
336
518
3.0
4.8
16
34
55
98
380
590
3.5
5.1
17
43
60
112
418
660
4.0
5.5
18
48
70
123
458
720
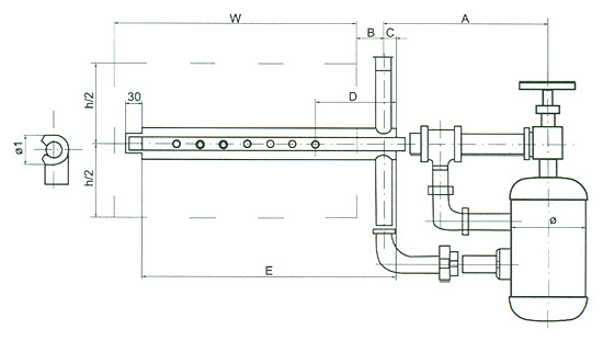
注:表中加湿量是调节阀全开时的最大加湿量(公斤/小时)。加湿器安装尺寸
型号
φ
φ1
A
B
C
D
E
F
G
孔径
孔数
15
159
48
视阀门定
70
25
180
下表
60
1”
φ2,4,6
16
20
219
63
75
28
185
75
11/4”
φ8,10
16
25
250
85
87
41
195
90
11/2”
φ12,14
16
注1、空调器或风管开孔尺寸:15型开孔70;20型开孔85;25型开孔100。
注2、根据调节阀安装的位置,尺寸A有所变动,此图提供的是最大安装尺寸。喷管长度E和风管宽度W尺寸表
喷管型号
P1
P2
P3
P4
P5
P6
P7
P8
P9
P10
P11
P12
P13
长度E
310
460
610
910
1220
1500
1820
2100
2450
2740
3050
3550
3650
W
最小
200
385
535
785
1085
1335
1635
1935
2235
25325
2835
3135
3435
最大
360
510
760
1060
1310
1610
1910
2210
2510
2810
3110
3410
3710
尺寸图示:
加湿器安装注意事项:
本干蒸汽加湿器安装方便,只须将喷汽管插入空调或风管内,喷管尾部有安装架,可任意固定在板壁上,一般来说,喷汽管宜安装在风管中间,喷孔逆着气流方向,蒸发器上下的连接管可任意调换,以适应空调器左式或右式安装的需要,蒸发器须保持垂直,其它连接管可根据位置任意连接,当蒸汽供汽压力大于4kg/cm以上,最好装有减压阀。




