板式全热交换器芯体
![]()
公司名称: 苏普思科技 Sorpist Technologies (Wuxi) Limited 产品型号: HEP-T6/T4系列板式全热交换器芯体(六边形/正方形) 产品简介: 百箭板式全热交换器芯体特点:1、单元式结构,灵活搭配随意组合,适用各种风量;2、ABS框架,清洗方便,结构坚固,使用寿命长;3、传热壁经特殊处理可消毒杀菌;4、方形通道适合大风量全热交换处理,六边形通道更加高效节能。5、六边形全热交换芯、正方形先热交换芯有多种规格供供选择。板式全热交换器的全热交换效率可达90%;新风污风两股空气无交叉污染;全热交换无冷凝水,不结霜不结冰;维持低风阻同时实现在在大风量产品上的应用;应用于热回收及热交换等各种不同需要的场合;
详细信息
苏普思公司研发生产的HEP系列板式全热交换器芯体,拥有自主知识产权,具有高效热湿传递性能,广泛适用众多能量回收、新风换气机、新风系统产品。
HEP系列全热交换器新风换气机新风系统板式全热交换器芯体:
1、单元式结构,灵活搭配随意组合,适用各种风量;
2、ABS框架,清洗方便,结构坚固,使用寿命长;
3、传热壁经特殊处理可消毒杀菌的热回收特种高分子材料;
4、方形通道适合大风量全热交换处理,六边形通道更加高效节能。
5、多种规格供选择:
六边形全热交换芯:200*120,380*230,450*250,600*400。
正方形全热交换芯:150*150,200*200,250*250,300*300,350*350,400*400,450*450,500*500。
HEP系列全热交换器新风换气机新风系统板式全热交换器芯体(正方形/六边形)特点:
1、采用独特的热函传递材料,同时传质传热;
2、逆流式热交换方式,全热交换效率可达90%;
3、ABS框架结构,风阻低,不会收缩变形,坚固耐用,日常维护简便;
4、热交换材料透气率极低,新风污风两股空气完全隔离,无交叉污染;
5、全热交换,无冷凝水,不结霜,不结冰;
6、可模块组合,维持低风阻同时实现在在大风量产品上的应用;
7、应用于热回收及热交换等各种不同需要的场合;
8、专利产品(专利号:ZL2005201160881.5,ZL2005301145421.9)。
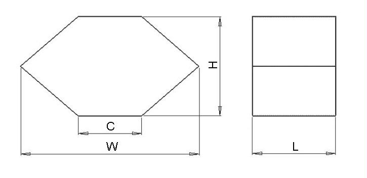
板式全热交换器芯体型号规格:
A、HEP-T6 板式全热交换器六边形全热交换芯体
型 号
W(mm)
H(mm)
C(mm)
L(mm)
HEP-T6-200
200
120
80
按需
HEP-T6-380
380
230
110
按需
HEP-T6-450
450
250
160
按需
HEP-T6-600
600
400
250
按需
说明:1、美国进口全热交换纸材料。2、六边形,逆流,ABS框架。3、可按客户所需定制其它规格产品。
B、HEP-T6Z 板式全热交换器正六边形全热交换芯体
HEP-T6Z 对边366mm
说明:1、美国进口全热交换纸材料。
2、正六边形,逆流,ABS框架。
3、可按客户所需定制其它规格产品。
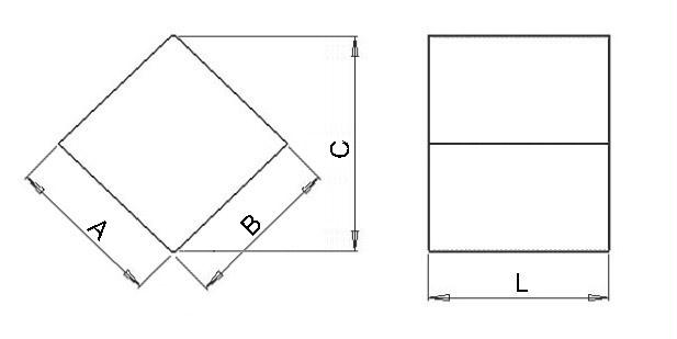
C、HEP-T4 板式全热交换器正方形全热交换芯体
型 号
A(mm)
B(mm)
C(mm)*
L(mm)
HEP-T4-150
150
150
210
按需
HEP-T4-200
200
200
280
按需
HEP-T4-250
250
250
350
按需
HEP-T4-300
300
300
420
按需
HEP-T4-350
350
350
490
按需
HEP-T4-400
400
400
565
按需
HEP-T4-450
450
450
635
按需
HEP-T4-500
500
500
705
按需
说明:1、美国进口全热交换纸材料。2、方形,交叉流,ABS框架。3、可按客户所需定制其它规格产品。
产品技术性能:
(性能参数仅供参考)
本公司同时提供各类全热交换器新风换气机新风系统设备以及能量回收空调机组等成套设备。
设备按安装形式有吊顶式,壁挂式,落地式;按结构形式有整体式,分体式,组合式;按功能不同有标准式,调温式,多功能式等。
欢迎广大用户、工程公司以及设备生产商咨询采购。










